ОАО "Научно-производственная компания Юницкого" разработало коммерческое предложение "Грузовая однопутная трасса струнной транспортной системы "Рудник "Снегирихинский" - обогатительная фабрика пос. Белоусовка", в основу которого положены изобретения А.Э. Юницкого, представляющие собой размещённую на опорах предварительно напряжённую канатно-балочную конструкцию, по которой на высоте 3-5 м движутся грузовые составы.
Схема расположения грузового участка трассы СТС "Рудник "Снегирихинский - обогатительная фабрика пос. Белоусовка" представлена ниже.

На схеме показаны два варианта прокладки трассы. Первый вариант трассы, в основном, проходит вдоль существующих дорог, соединяющих посёлки, расположенные на пути проектируемой трассы.

На рис. выше представлен продольный профиль всей трассы. Перепад высот от рудника до фабрики составляет 400 м с величиной уклонов от 4,57 до 0,06 , что характеризует местность прохождения трассы как холмистую.
Однако, учитывая, что трасса СТС некритична к рельефу местности, она может быть проложена по кратчайшему пути - по прямой линии. В таком случае протяжённость трассы составит вместо 100 км всего 80 км (вариант 2).
Линейная схема трассы по 1 варианту показана на рис. ниже.

Эксплуатация трассы будет происходить при температурах от -50°C до +50°С.
Подвижной состав включает в себя локомотив, на котором установлены два дизель-генератора суммарной мощностью 400 кВт, предназначенные для питания электродвигателей привода колес. Все колеса состава выполнены приводными и имеют независимую (автомобильную) подвеску. Каждое стальное колесо локомотива и грузового модуля имеет две реборды (гребня) высотой 50 мм, которые 8 охватывают круглую головку рельса с двух сторон, поэтому вероятность схода модулей с путевой структуры будет на порядок ниже, чем в существующем железнодорожном транспорте.

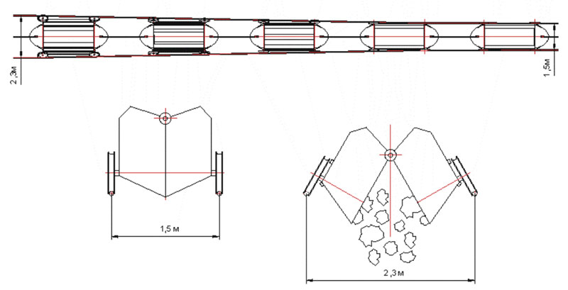
Помимо локомотива состав включает в себя грузовые модули, оборудованные раскрывающимся при разгрузке кузовом. Загрузка модулей производится в карьере из бункеров, которые оборудованы дозаторами. Разгрузка каждого модуля производится автоматически в разгрузочном терминале за счет увеличивающейся колеи в этом месте и раскрытия модуля снизу по всей длине.

На трассе колея имеет постоянный размер (1500 мм), а в разгрузочном терминале происходит её плавное увеличение до величины 2300 мм, необходимое для разгрузки (см. рис. ниже).

Более подробно - см. прилагаемое коммерческое предложение "Грузовая однопутная трасса СТС "Рудник "Снегирихинский" - обогатительная фабрика пос. Белоусовка".