Целью проекта струнной транспортной системы "Шереметьево - Быково - Домодедово - Внуково - Шереметьево" является создание транспортного кольца, связывающего аэропорты Московского авиационного узла между собой и Москвой, путём использования экологически чистой грузопассажирской струнной транспортной системы (СТС), не нарушающей окружающую среду во время её возведения и эксплуатации, не требующей вырубки зелёных насаждений, земляных работ по устройству насыпей и выемок, строительства мостов, тоннелей и транспортных развязок, и требующей землеотвод только под опоры.
Приоритетными выбраны следующие направления:
Трасса СТС будет выполнена в виде замкнутого кольца, соединяющего, помимо аэропортов "Шереметьево", "Внуково", "Домодедово" и "Быково", 11 крупных подмосковных городов-спутников, а именно: Химки, Долгопрудный, Мытищи, Королёв, Балашиха, Железнодорожный, Домодедово, Подольск, Троицк, Одинцово, Красногорск.
Кроме самого кольца, предусмотрены радиальные трассы, соединяющие аэропорты с Москвой. Ещё одна радиальная трасса свяжет Москву с подмосковной Балашихой. Общая протяжённость линий СТС составит 261 км, из них 199 км - протяжённость кольцевой трассы и 62 км - радиальных участков.
Схема прохождения трассы СТС показана на рис. ниже. При поддержании проекта Администрацией Москвы радиальные трассы будут продлены до ближайших станций метрополитена.

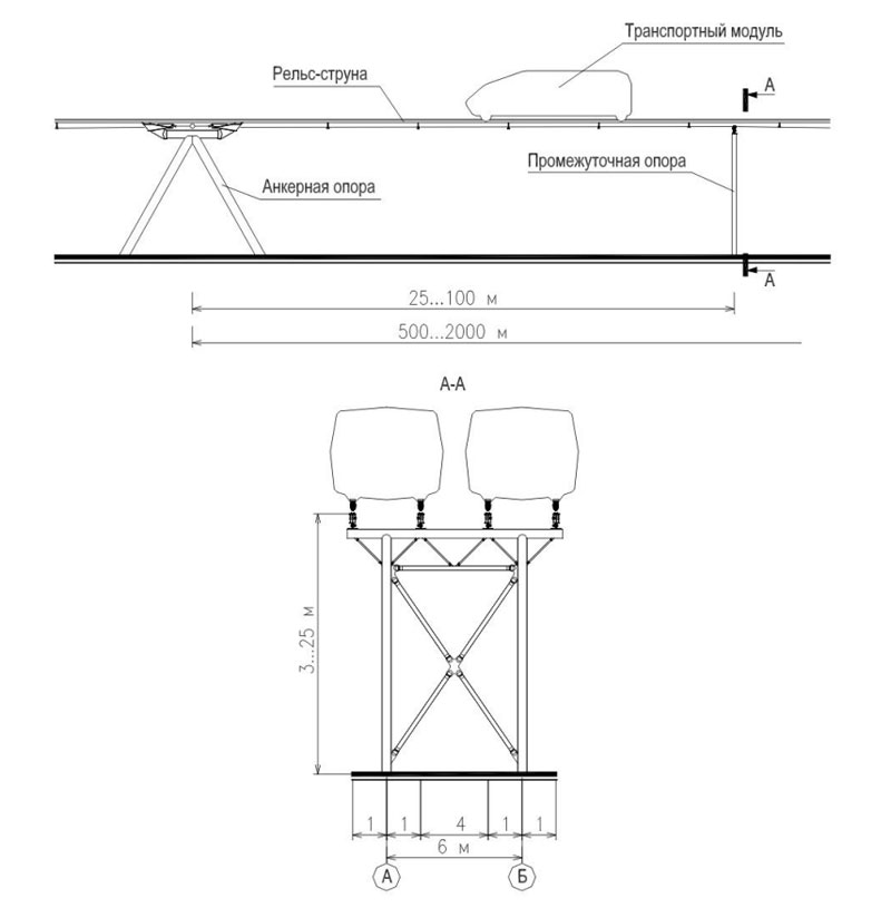
Оптимальное расстояние между промежуточными опорами на трассе - 50 м. При необходимости, на сложных участках, это расстояние может быть уменьшено до 25 м, или наоборот, увеличено до 100 м. При большей длине пролёта (современные материалы обеспечивают длину пролета до 2000 м и выше) путевая структура должна поддерживаться с помощью вант или каната (по типу висячих и вантовых мостов).

Трасса будет выполнена двухпутной. Здесь будет достаточно высокий грузопоток (свыше 2 млн. т различных грузов в год) и пассажиропоток (свыше 30 млн. пасс./год).
Прямая и обратная линии трассы смонтированы на общих опорах. На отдельных участках, при необходимости, прокладка линий может осуществляться независимо с разведением на расстояние до несколько сот метров друг от друга.

Несущая конструкция опор подразделяется на два характерных типа:

В качестве подвижного состава для перевозки пассажиров по трассе будут эксплуатироваться специально разработанные и изготовленные пассажирские модули "Юнибусы". Такие модули с целью максимальной унификации строятся по блочному принципу. Каждый модуль состоит из трех блоков: агрегатного и двух пассажирских. Агрегатный блок располагается в середине модуля, он имеет небольшую длину, и служит в основном для размещения двигательной установки. На раму агрегатного блока опираются обращенные к середине модуля концы пассажирских блоков.

Несущая система пассажирского блока состоит из продольных элементов (лонжеронов, стрингеров) и поперечных (шпангоутов). Она может быть выполнена наборной из алюминиевых профилей, связанных обшивкой из алюминиевого листа, или формованной заодно с обшивкой из композитных материалов на основе трехслойных панелей ("сэндвич"). Конструктивно корпус пассажирского блока выполняется из поперечных секций, имеющих окна или дверные проемы. В зависимости от назначения модуля корпус набирается из различных комбинаций таких секций. Соединение секций между собой производится на шпангоутах. Концевые секции - передняя и задняя - собираются отдельно и также на шпангоутах соединяются со средней частью пассажирского блока. Внешние очертания концевых секций определяются соображениями аэродинамики и эстетики.

Кроме "Юнибусов" будут использоваться пассажирские эшелоны.

Такой пассажирский эшелон представляет собой колесное транспортное средство, состоящее из энергетического модуля, расположенного впереди, и 5 пассажирских модулей, соединенных между собой жесткой сцепкой. Вместимость каждого модуля - 30-60 пассажиров, эшелона - 150-300 человек. Каждый энергетический модуль оборудован дизель-генератором, а каждый пассажирский модуль - электродвигателями общей мощностью 33 кВт, что обеспечит скорость движения в 150 км/час. Питание на электродвигатели привода колес поступает от энергетического модуля. Все колеса состава выполнены приводными.

На первом этапе (1-2 года) в качестве подвижного состава для перевозки пассажиров по трассе СТС могут быть использованы выпускаемые автомобильной промышленностью автобусы и микроавтобусы, в которых необходимо лишь заменить колёса (пневматические шины поменять на стальные колёса, разработанные и изготавливаемые ОАО "НПК Юницкого"). Такие модули будут управляться водителями (машинистами). Из отечественных микроавтобусов могут использоваться "Соболь", "Бычок", "Газель".

Более подробно - см. коммерческое предложение: Струнная транспортная система "Шереметьево - Быково - Домодедово - Внуково - Шереметьево".